1
Anzahl der Objekte: 1 | 1
Obj.: 1 | 1

Vermietete 3-Raum-Eigentumswohnung mit Gäste-WC und Balkon, im Husarenpark, in 04860 Torgau

Hausansicht Etagenwohnung Torgau
Hausansicht
150.000,- €
 
Hausansicht Etagenwohnung Torgau
Hausansicht
Aussicht vom Balkon Etagenwohnung Torgau
Aussicht vom Balkon
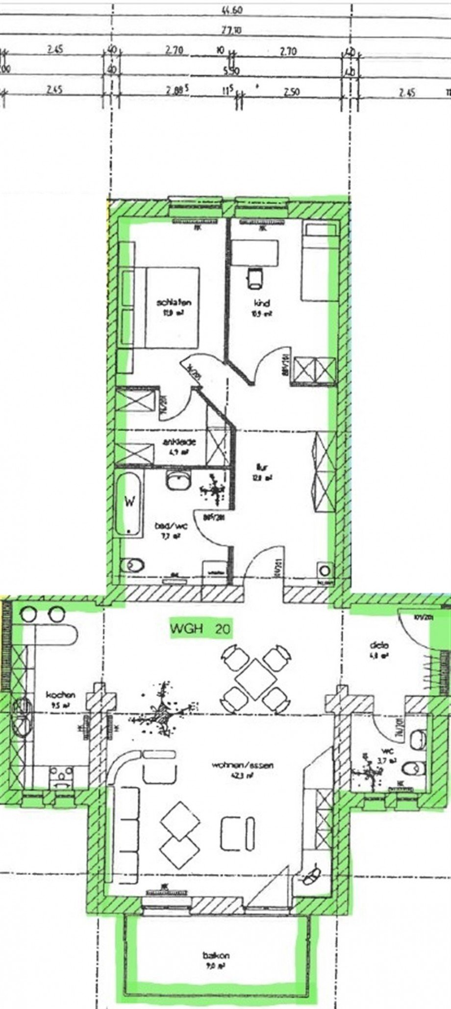
Grundriss WE 20 Etagenwohnung Torgau
Grundriss WE 20

Objektart

Etagenwohnung

Adresse

04860 Torgau

Objektdaten

Objekt-Nr. HP-WE20-2.OG-3RW
Wohnfläche (ca.) 112,10 m²
Zimmer 3
Kaufpreis 150.000,- €

Informationen

Zustand
teil / vollsaniert

Ausstattung

Details

Bodenbelag
Fliesen
Befeuerung
Gas

Zum Kauf angeboten wird eine vermietete 3-Raum-Wohnung im 2.OG im Husarenpark,
in 04860 Torgau.
Das denkmalgeschützte, ehemalige Mannschaftshaus des Husaren-Regiments wurde um 1901 errichtet.
Das Haus wurde 1995 nach WEG-Recht geteilt und saniert.

- Nettokaltmiete p.a,: 5518,56 EUR
- Hausgeld/Monat: 440,00 EUR
- Kaufpreisrendite: 3,6 %

*auch Paketkauf möglich*

Die angebotene 3-Raum-Wohnung befindet sich im 2.OG, im Husarenpark, in 04860 Torgau.
Betreten wird die Wohnung durch einen kurzen Flur.
Direkt auf der linken Seite befindet sich ein gefliestes Tageslicht-Gäste-WC.
Ein stück weiter den Flur entlang eröffnet sich ein sehr großer Wohnbereich mit Zugang zum Balkon. Direkt vom Wohnbereich aus, gelangt man in die Küche.
Auf der rechten Seite grenzt eine Wohndiele am Wohnbereich an.
Auf der linken Seite der Diele befindet sich das geflieste Hauptbadezimmer mit Badewanne
und Handtuchtrockner.
Weiter die Diele entlang befindet sich ein Schlafzimmer mit einem kleinen Ankleidezimmer
und einem weiteren Zimmer.

Die Renaissancestadt Torgau bildet einen Knotenpunkt zwischen Herzberg und Leipzig.
Kurz vor der grenze zu Brandenburg gelegen beheimatet Torgau viele Berufspendler, die die gute Bahnanbindung nach Leipzig (aller 30 Minuten) oder nach Herzberg nutzen.
Der Husarenpark ist eine beliebte Wohnanlage von Torgau.
Das Krankenhaus, ein Einkaufscenter, ein Orthopäde, ein Kinderarzt, das Jobcenter,
ein Seniorenpflegeheim sowie der Torgauer Friedhof sind fußläufig erreichbar.
Für weitere Strecken, befindet sich eine Bushaltestelle direkt am Husarenpark.
Die parkähnlich gestaltete Wohnanlage lädt zum Spazieren ein.
Im Sommer bieten die großen Bäume kühlenden Schatten.

Zur Wohnung gehört das Sondereigentum an einen Kellerabteil
und ein Sodernutzungsrecht für einen Parkplatz.
Mit Erwerb der Wohnung erhält der Käufer einen Miteigentumsanteil von 671/10.000 MEA an der Wohnungseigentümergemeinschaft.
Die angebotene Eigentumswohnung ist ebenso wie die parkähnlich gestaltete Außenanlage in einem gepflegten Zustand.

Ansprechpartner

Dr. Jürgen Herzog Immobilien e. K. Patricia Melzig
Telefon: +49 3421 712829
Telefax: +49 3421 712839
info@dr-herzog-immobilien.de

Ich bin damit einverstanden, dass mir Karten von Google angezeigt werden. Es gelten die Datenschutzbedingungen von Google (https://policies.google.com/privacy).

Ich bin einverstanden

Objektanfrage

Sie haben noch Fragen zu dem Angebot oder wollen einen Besichtigungstermin vereinbaren, dann füllen Sie einfach das untenstehende Formular vollständig aus und wir setzen uns schnellstmöglich mit Ihnen in Verbindung.

* Pflichtfelder